Kupujący nie płaci prowizji!
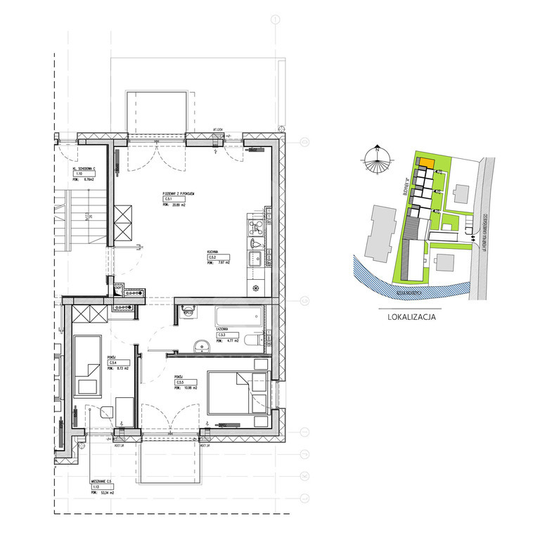
Polecam nowe, gotowe do odbioru mieszkanie 3 pokojowe z 2 balkonami, na I piętrze kameralnego budynku 3 piętowego, przy ul. Kamieńskiego (w okolicy ul. Poświęckiej).
nr 238/5
Podana cena obejmuje zakup mieszkania wraz z miejscem postojowym w garażu podziemnym i komórką lokatorską!
Lokalizacja:
- północna cz. Wrocławia, ul. Kamieńskiego,
- na styku osiedli Polanowice i Poświętne, w północnej części miasta, przy zbiegu ulic Kamieńskiego i Poświęckiej,
- odległość do Rynku - 6 km
- do obwodnicy Wrocławia - 1,5 km,
- sklepy, kościół, szkoła, przedszkole 100 m - 1 km,
- najbliższe centrum handlowe (Marino) - 1 km
W niewielkiej odległości znajdują się pętla tramwajowa Poświętne (linie 0P, 1, 7, 8, 15, 17, 24) oraz pętla autobusowa Polanowice (linie 130, 247, 930).
Lokalizacja ta zapewnia ponadto dogodny dojazd do centrum samochodem (12 min) lub np. rowerem (18 min). W bliskiej odległości jest węzeł komunikacyjny Wrocław Północ (AOW, A8, S5), CH Marino oraz Szpital Wojewódzki.
Inwestycja zlokalizowana jest w spokojnej, cichej okolicy, dominuje zabudowa jednorodzinna. Nieopodal znajdują się rozległe tereny zielone. Wzdłuż graniczącej z działką rzeki Mokrzycy zgodnie z planem miejscowym planowana jest ścieżka rowerowa.
Budynek:
- kameralny, nowoczesny budynek 3 piętrowy,
- monitoring 24h,
- garaż podziemny,
- na parterze mieszkania z tarasami,
- teren ogrodzony
Mieszkanie:
- powierzchnia mieszkania 53,34 m2,
- pokój z aneksem kuchennym ma łączną powierzchnią 28,86 m2, można też zrobić oddzielną, zamykaną kuchnię z oknem (pow. 8 m2)
- dodatkowo są dwie sypialnie o pow. ok. 11 i 9 m2,
- są 2 balkony (wyjście z pokoju dziennego oraz jednej sypialni),
- mieszkanie dwustronne, z oknami na północny zachód i południowy wschód,
- łazienka 4,77 m2,
- wysokość 2,69 m
Dodatkowo do mieszkania jest przynależne:
- własne miejsce postojowe w garażu podziemnym,
- oraz komórka lokatorska o pow.: 1,98 m2,
Układ mieszkania widoczny na załączonym rzucie.
Podana cena jest ceną brutto,
obejmującą zakup mieszkania wraz z miejscem parkingowym w garażu podziemnym i komórką lokatorską o pow.1,98 m2.
Dostępne są również inne mieszkania w tym budynku.Więcej informacji na stronie: kamienskiego232.
Każde mieszkanie z miejsce postojowym w garażu i komórką.
Na ostatnim piętrze mieszkania 2 poziomowe, pięknie doświetlone, a na parterze z trasem.
Zakup bez prowizji i podatku PCC!
Zapraszam na prezentacje.
----
Pośrednik Teresa Drozd-Beżaniszwili,
tel. 697-858-848,
biuro DROZD Nieruchomości,
poniedziałek-piątek 9.00-19.00
/Przykładamy dużą wagę do tego, aby możliwie najdokładniej i rzetelnie przedstawić Państwu informacje o nieruchomości, jednak zamieszczone przez nas oferty nie stanowią oferty w rozumieniu Kodeksu Cywilnego./
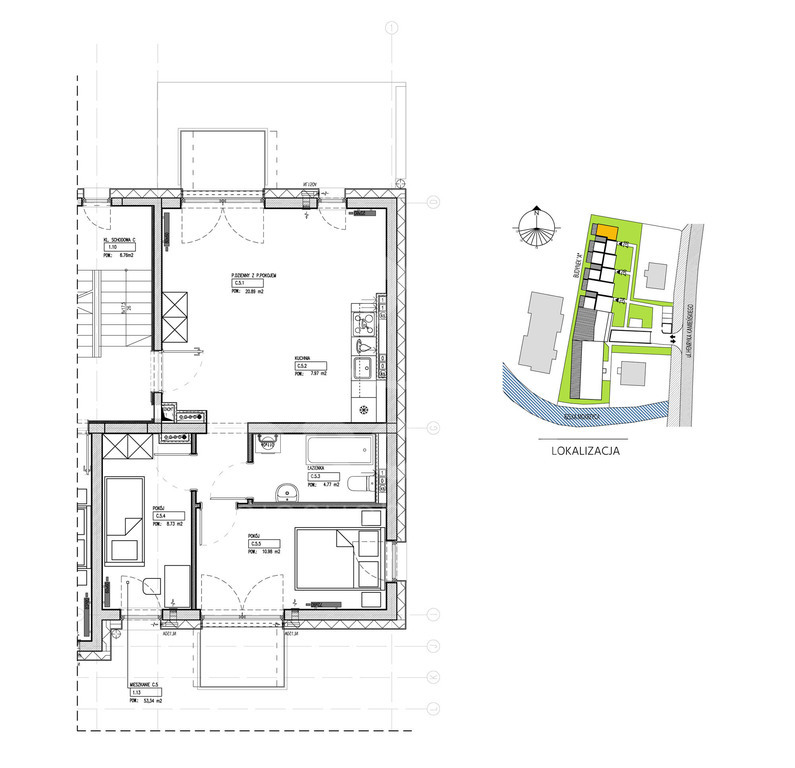
Polecam nowe, gotowe do odbioru mieszkanie 3 pokojowe z 2 balkonami, na I piętrze kameralnego budynku 3 piętowego, przy ul. Kamieńskiego (w okolicy ul. Poświęckiej).
nr 238/5
Podana cena obejmuje zakup mieszkania wraz z miejscem postojowym w garażu podziemnym i komórką lokatorską!
Lokalizacja:
- północna cz. Wrocławia, ul. Kamieńskiego,
- na styku osiedli Polanowice i Poświętne, w północnej części miasta, przy zbiegu ulic Kamieńskiego i Poświęckiej,
- odległość do Rynku - 6 km
- do obwodnicy Wrocławia - 1,5 km,
- sklepy, kościół, szkoła, przedszkole 100 m - 1 km,
- najbliższe centrum handlowe (Marino) - 1 km
W niewielkiej odległości znajdują się pętla tramwajowa Poświętne (linie 0P, 1, 7, 8, 15, 17, 24) oraz pętla autobusowa Polanowice (linie 130, 247, 930).
Lokalizacja ta zapewnia ponadto dogodny dojazd do centrum samochodem (12 min) lub np. rowerem (18 min). W bliskiej odległości jest węzeł komunikacyjny Wrocław Północ (AOW, A8, S5), CH Marino oraz Szpital Wojewódzki.
Inwestycja zlokalizowana jest w spokojnej, cichej okolicy, dominuje zabudowa jednorodzinna. Nieopodal znajdują się rozległe tereny zielone. Wzdłuż graniczącej z działką rzeki Mokrzycy zgodnie z planem miejscowym planowana jest ścieżka rowerowa.
Budynek:
- kameralny, nowoczesny budynek 3 piętrowy,
- monitoring 24h,
- garaż podziemny,
- na parterze mieszkania z tarasami,
- teren ogrodzony
Mieszkanie:
- powierzchnia mieszkania 53,34 m2,
- pokój z aneksem kuchennym ma łączną powierzchnią 28,86 m2, można też zrobić oddzielną, zamykaną kuchnię z oknem (pow. 8 m2)
- dodatkowo są dwie sypialnie o pow. ok. 11 i 9 m2,
- są 2 balkony (wyjście z pokoju dziennego oraz jednej sypialni),
- mieszkanie dwustronne, z oknami na północny zachód i południowy wschód,
- łazienka 4,77 m2,
- wysokość 2,69 m
Dodatkowo do mieszkania jest przynależne:
- własne miejsce postojowe w garażu podziemnym,
- oraz komórka lokatorska o pow.: 1,98 m2,
Układ mieszkania widoczny na załączonym rzucie.
Podana cena jest ceną brutto,
obejmującą zakup mieszkania wraz z miejscem parkingowym w garażu podziemnym i komórką lokatorską o pow.1,98 m2.
Dostępne są również inne mieszkania w tym budynku.Więcej informacji na stronie: kamienskiego232.
Każde mieszkanie z miejsce postojowym w garażu i komórką.
Na ostatnim piętrze mieszkania 2 poziomowe, pięknie doświetlone, a na parterze z trasem.
Zakup bez prowizji i podatku PCC!
Zapraszam na prezentacje.
----
Pośrednik Teresa Drozd-Beżaniszwili,
tel. 697-858-848,
biuro DROZD Nieruchomości,
poniedziałek-piątek 9.00-19.00
/Przykładamy dużą wagę do tego, aby możliwie najdokładniej i rzetelnie przedstawić Państwu informacje o nieruchomości, jednak zamieszczone przez nas oferty nie stanowią oferty w rozumieniu Kodeksu Cywilnego./
Wrocław, Poświętne
test test
Kupujący nie płaci prowizji!
Polecam nowe, gotowe do odbioru mieszkanie 3 pokojowe z 2 balkonami, na I piętrze kameralnego budynku 3 piętowego, przy ul. Kamieńskiego (w okolicy ul. Poświęckiej).
nr 238/5
Podana cena obejmuje zakup mieszkania wraz z miejscem postojowym w garażu podziemnym i komórką lokatorską!
Lokalizacja:
- północna cz. Wrocławia, ul. Kamieńskiego,
- na styku osiedli Polanowice i Poświętne, w północnej części miasta, przy zbiegu ulic Kamieńskiego i Poświęckiej,
- odległość do Rynku - 6 km
- do obwodnicy Wrocławia - 1,5 km,
- sklepy, kościół, szkoła, przedszkole 100 m - 1 km,
- najbliższe centrum handlowe (Marino) - 1 km
W niewielkiej odległości znajdują się pętla tramwajowa Poświętne (linie 0P, 1, 7, 8, 15, 17, 24) oraz pętla autobusowa Polanowice (linie 130, 247, 930).
Lokalizacja ta zapewnia ponadto dogodny dojazd do centrum samochodem (12 min) lub np. rowerem (18 min). W bliskiej odległości jest węzeł komunikacyjny Wrocław Północ (AOW, A8, S5), CH Marino oraz Szpital Wojewódzki.
Inwestycja zlokalizowana jest w spokojnej, cichej okolicy, dominuje zabudowa jednorodzinna. Nieopodal znajdują się rozległe tereny zielone. Wzdłuż graniczącej z działką rzeki Mokrzycy zgodnie z planem miejscowym planowana jest ścieżka rowerowa.
Budynek:
- kameralny, nowoczesny budynek 3 piętrowy,
- monitoring 24h,
- garaż podziemny,
- na parterze mieszkania z tarasami,
- teren ogrodzony
Mieszkanie:
- powierzchnia mieszkania 53,34 m2,
- pokój z aneksem kuchennym ma łączną powierzchnią 28,86 m2, można też zrobić oddzielną, zamykaną kuchnię z oknem (pow. 8 m2)
- dodatkowo są dwie sypialnie o pow. ok. 11 i 9 m2,
- są 2 balkony (wyjście z pokoju dziennego oraz jednej sypialni),
- mieszkanie dwustronne, z oknami na północny zachód i południowy wschód,
- łazienka 4,77 m2,
- wysokość 2,69 m
Dodatkowo do mieszkania jest przynależne:
- własne miejsce postojowe w garażu podziemnym,
- oraz komórka lokatorska o pow.: 1,98 m2,
Układ mieszkania widoczny na załączonym rzucie.
Podana cena jest ceną brutto,
obejmującą zakup mieszkania wraz z miejscem parkingowym w garażu podziemnym i komórką lokatorską o pow.1,98 m2.
Dostępne są również inne mieszkania w tym budynku.Więcej informacji na stronie: kamienskiego232.
Każde mieszkanie z miejsce postojowym w garażu i komórką.
Na ostatnim piętrze mieszkania 2 poziomowe, pięknie doświetlone, a na parterze z trasem.
Zakup bez prowizji i podatku PCC!
Zapraszam na prezentacje.
----
Pośrednik Teresa Drozd-Beżaniszwili,
tel. 697-858-848,
biuro DROZD Nieruchomości,
poniedziałek-piątek 9.00-19.00
/Przykładamy dużą wagę do tego, aby możliwie najdokładniej i rzetelnie przedstawić Państwu informacje o nieruchomości, jednak zamieszczone przez nas oferty nie stanowią oferty w rozumieniu Kodeksu Cywilnego./
Polecam nowe, gotowe do odbioru mieszkanie 3 pokojowe z 2 balkonami, na I piętrze kameralnego budynku 3 piętowego, przy ul. Kamieńskiego (w okolicy ul. Poświęckiej).
nr 238/5
Podana cena obejmuje zakup mieszkania wraz z miejscem postojowym w garażu podziemnym i komórką lokatorską!
Lokalizacja:
- północna cz. Wrocławia, ul. Kamieńskiego,
- na styku osiedli Polanowice i Poświętne, w północnej części miasta, przy zbiegu ulic Kamieńskiego i Poświęckiej,
- odległość do Rynku - 6 km
- do obwodnicy Wrocławia - 1,5 km,
- sklepy, kościół, szkoła, przedszkole 100 m - 1 km,
- najbliższe centrum handlowe (Marino) - 1 km
W niewielkiej odległości znajdują się pętla tramwajowa Poświętne (linie 0P, 1, 7, 8, 15, 17, 24) oraz pętla autobusowa Polanowice (linie 130, 247, 930).
Lokalizacja ta zapewnia ponadto dogodny dojazd do centrum samochodem (12 min) lub np. rowerem (18 min). W bliskiej odległości jest węzeł komunikacyjny Wrocław Północ (AOW, A8, S5), CH Marino oraz Szpital Wojewódzki.
Inwestycja zlokalizowana jest w spokojnej, cichej okolicy, dominuje zabudowa jednorodzinna. Nieopodal znajdują się rozległe tereny zielone. Wzdłuż graniczącej z działką rzeki Mokrzycy zgodnie z planem miejscowym planowana jest ścieżka rowerowa.
Budynek:
- kameralny, nowoczesny budynek 3 piętrowy,
- monitoring 24h,
- garaż podziemny,
- na parterze mieszkania z tarasami,
- teren ogrodzony
Mieszkanie:
- powierzchnia mieszkania 53,34 m2,
- pokój z aneksem kuchennym ma łączną powierzchnią 28,86 m2, można też zrobić oddzielną, zamykaną kuchnię z oknem (pow. 8 m2)
- dodatkowo są dwie sypialnie o pow. ok. 11 i 9 m2,
- są 2 balkony (wyjście z pokoju dziennego oraz jednej sypialni),
- mieszkanie dwustronne, z oknami na północny zachód i południowy wschód,
- łazienka 4,77 m2,
- wysokość 2,69 m
Dodatkowo do mieszkania jest przynależne:
- własne miejsce postojowe w garażu podziemnym,
- oraz komórka lokatorska o pow.: 1,98 m2,
Układ mieszkania widoczny na załączonym rzucie.
Podana cena jest ceną brutto,
obejmującą zakup mieszkania wraz z miejscem parkingowym w garażu podziemnym i komórką lokatorską o pow.1,98 m2.
Dostępne są również inne mieszkania w tym budynku.Więcej informacji na stronie: kamienskiego232.
Każde mieszkanie z miejsce postojowym w garażu i komórką.
Na ostatnim piętrze mieszkania 2 poziomowe, pięknie doświetlone, a na parterze z trasem.
Zakup bez prowizji i podatku PCC!
Zapraszam na prezentacje.
----
Pośrednik Teresa Drozd-Beżaniszwili,
tel. 697-858-848,
biuro DROZD Nieruchomości,
poniedziałek-piątek 9.00-19.00
/Przykładamy dużą wagę do tego, aby możliwie najdokładniej i rzetelnie przedstawić Państwu informacje o nieruchomości, jednak zamieszczone przez nas oferty nie stanowią oferty w rozumieniu Kodeksu Cywilnego./
Wrocław, Poświętne
Formularz Kontaktowy
Napisz lub zadzwoń zgłoś zamówienie