Polecam naprawdę ładne, gruntownie i gustownie wyremontowane mieszkanie 2 pokojowe, w dogodnej lokalizacji, boczna Lotniczej (okolice ulicy Górniczej/ Hutniczej), z szybkim dojazdem do centrum. Gotowe do zamieszkania od zaraz.
Oferta na wyłączność.
LOKALIZACJA:
- Wrocław-Fabryczna, osiedle Pilczyce, ul. Szklarska,
- boczna, cicha i spokojna ulica,
- wokół budynku jest dużo ogólnodostępnych miejsc parkingowych!,
- blisko jest przystanek komunikacji miejskiej (tramwaje i autobusy), szybki dojazd tramwajem do centrum,
- w pobliżu bardzo dobrze rozwinięta infrastruktura, liczne sklepy, punkty usługowe, szkoły i rekreacja,
BUDYNEK:
- budynek 2 piętrowy z cegły, lata 30ste,
- w bardzo dobrym stanie, zadbany, z odnowioną i docieplona elewacją,
- klatka czysta, zadbana,
- suche piwnice,
- większość mieszkań własnościowych
MIESZKANIE:
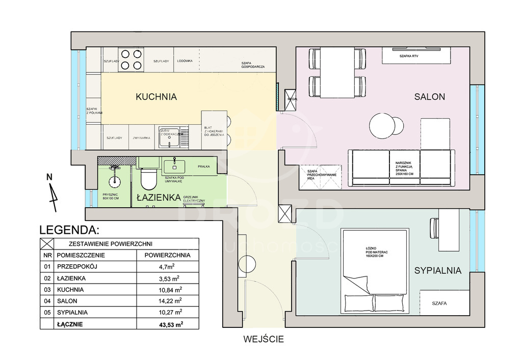
- wg KW samo mieszkanie ma powierzchnię 40,27 m2 (wg pomiarów 43,53),
- powierzchnia łączna wraz z piwnicą (12,34 m2) wpisaną do księgi to 52,61 m2,
- składa się z: dwóch pokoi o pow.: 14,22 m2 i 10,27 m2, kuchni z dużym oknem o pow. 10,84 m2 otwartej na przedpokój, łazienki z oknem 3,53 m2 oraz przedpokoju 4,7 m2,
- rozkład pomieszczeń widoczny na załączonym rzucie,
- położone jest na 2 piętrze, nad mieszkaniem jest strych (czysty, zadbany, idealny do suszenia prania),
- dwustronne (wschód-zachód z lekkim odchyleniem), rozkładowe
STAN MIESZKANIA:
- mieszkanie po kapitalnym remoncie (rok temu),
- wszystko jest nowe (w tym oczywiście instalacje, tynki, podłogi, itd),
- remontowane wg projektu, tak więc wszystko zostało dobrze przemyślane i rozplanowane,
- komfortowe dla pary lub singla (również dobre pod wynajem)
- całe widoczne na zdjęciach wyposażenie zostaje (w cenie mieszkania),
- kuchnia z meblami na wymiar i dużą szafą gospodarczą, ponadto wyposażona w zmywarkę, płytę indukcyjną, piekarnik, okap i lodówkę z zamrażalnikiem
OPŁATY MIESIĘCZNE:
- czynsz przy 2 osobach 375 zł plus fundusz remontowy 105 zł,
- dodatkowo tylko prąd, średni miesięczny koszt to 447 zł (wg realnego zużycia za ostatnie 13 miesięcy)
OGRZEWANIE I CIEPŁA WODA:
- nowoczesne, estetyczne i ekonomiczne grzejniki elektryczne, z funkcja zdalnego sterowania,
- jest też zamontowana klimatyzacja
INFORMACJE DODATKOWE:
- pełna własność z KW, bez obciążeń,
- duża (pow. 12,34 m2), własnościowa piwnica, jest sucha i ma okno,
- wokół budynku jest dużo ogólnodostępnych miejsc parkingowych,
- mieszkanie w pełni wyposażone,
- szybki termin wydania
- możliwość prezentacji w dogodnym terminie, klucze w biurze,
Zapraszam do kontaktu i umówienia spotkania.
----
Pośrednik Teresa Drozd-Beżaniszwili,
biuro DROZD Nieruchomości,
poniedziałek-piątek 9.00-19.00
Pośrednik od 2007 roku, nr lic. 14831. Korzystając z wiedzy i doświadczenia, pomogę Państwu w zakupie oraz sprzedaży nieruchomości, tak aby cały proces był spokojny i bezpieczny.
Oferta na stronie to tylko część mieszkań, jakie mogę zaoferować.
Zapraszam do kontaktu.
/Przykładamy dużą wagę do tego, aby możliwie najdokładniej i rzetelnie przedstawić Państwu informacje o nieruchomości, jednak zamieszczone przez nas oferty nie stanowią oferty w rozumieniu Kodeksu Cywilnego./
Oferta na wyłączność.
LOKALIZACJA:
- Wrocław-Fabryczna, osiedle Pilczyce, ul. Szklarska,
- boczna, cicha i spokojna ulica,
- wokół budynku jest dużo ogólnodostępnych miejsc parkingowych!,
- blisko jest przystanek komunikacji miejskiej (tramwaje i autobusy), szybki dojazd tramwajem do centrum,
- w pobliżu bardzo dobrze rozwinięta infrastruktura, liczne sklepy, punkty usługowe, szkoły i rekreacja,
BUDYNEK:
- budynek 2 piętrowy z cegły, lata 30ste,
- w bardzo dobrym stanie, zadbany, z odnowioną i docieplona elewacją,
- klatka czysta, zadbana,
- suche piwnice,
- większość mieszkań własnościowych
MIESZKANIE:
- wg KW samo mieszkanie ma powierzchnię 40,27 m2 (wg pomiarów 43,53),
- powierzchnia łączna wraz z piwnicą (12,34 m2) wpisaną do księgi to 52,61 m2,
- składa się z: dwóch pokoi o pow.: 14,22 m2 i 10,27 m2, kuchni z dużym oknem o pow. 10,84 m2 otwartej na przedpokój, łazienki z oknem 3,53 m2 oraz przedpokoju 4,7 m2,
- rozkład pomieszczeń widoczny na załączonym rzucie,
- położone jest na 2 piętrze, nad mieszkaniem jest strych (czysty, zadbany, idealny do suszenia prania),
- dwustronne (wschód-zachód z lekkim odchyleniem), rozkładowe
STAN MIESZKANIA:
- mieszkanie po kapitalnym remoncie (rok temu),
- wszystko jest nowe (w tym oczywiście instalacje, tynki, podłogi, itd),
- remontowane wg projektu, tak więc wszystko zostało dobrze przemyślane i rozplanowane,
- komfortowe dla pary lub singla (również dobre pod wynajem)
- całe widoczne na zdjęciach wyposażenie zostaje (w cenie mieszkania),
- kuchnia z meblami na wymiar i dużą szafą gospodarczą, ponadto wyposażona w zmywarkę, płytę indukcyjną, piekarnik, okap i lodówkę z zamrażalnikiem
OPŁATY MIESIĘCZNE:
- czynsz przy 2 osobach 375 zł plus fundusz remontowy 105 zł,
- dodatkowo tylko prąd, średni miesięczny koszt to 447 zł (wg realnego zużycia za ostatnie 13 miesięcy)
OGRZEWANIE I CIEPŁA WODA:
- nowoczesne, estetyczne i ekonomiczne grzejniki elektryczne, z funkcja zdalnego sterowania,
- jest też zamontowana klimatyzacja
INFORMACJE DODATKOWE:
- pełna własność z KW, bez obciążeń,
- duża (pow. 12,34 m2), własnościowa piwnica, jest sucha i ma okno,
- wokół budynku jest dużo ogólnodostępnych miejsc parkingowych,
- mieszkanie w pełni wyposażone,
- szybki termin wydania
- możliwość prezentacji w dogodnym terminie, klucze w biurze,
Zapraszam do kontaktu i umówienia spotkania.
----
Pośrednik Teresa Drozd-Beżaniszwili,
biuro DROZD Nieruchomości,
poniedziałek-piątek 9.00-19.00
Pośrednik od 2007 roku, nr lic. 14831. Korzystając z wiedzy i doświadczenia, pomogę Państwu w zakupie oraz sprzedaży nieruchomości, tak aby cały proces był spokojny i bezpieczny.
Oferta na stronie to tylko część mieszkań, jakie mogę zaoferować.
Zapraszam do kontaktu.
/Przykładamy dużą wagę do tego, aby możliwie najdokładniej i rzetelnie przedstawić Państwu informacje o nieruchomości, jednak zamieszczone przez nas oferty nie stanowią oferty w rozumieniu Kodeksu Cywilnego./
Wrocław, Pilczyce, Szklarska
test test
Polecam naprawdę ładne, gruntownie i gustownie wyremontowane mieszkanie 2 pokojowe, w dogodnej lokalizacji, boczna Lotniczej (okolice ulicy Górniczej/ Hutniczej), z szybkim dojazdem do centrum. Gotowe do zamieszkania od zaraz.
Oferta na wyłączność.
LOKALIZACJA:
- Wrocław-Fabryczna, osiedle Pilczyce, ul. Szklarska,
- boczna, cicha i spokojna ulica,
- wokół budynku jest dużo ogólnodostępnych miejsc parkingowych!,
- blisko jest przystanek komunikacji miejskiej (tramwaje i autobusy), szybki dojazd tramwajem do centrum,
- w pobliżu bardzo dobrze rozwinięta infrastruktura, liczne sklepy, punkty usługowe, szkoły i rekreacja,
BUDYNEK:
- budynek 2 piętrowy z cegły, lata 30ste,
- w bardzo dobrym stanie, zadbany, z odnowioną i docieplona elewacją,
- klatka czysta, zadbana,
- suche piwnice,
- większość mieszkań własnościowych
MIESZKANIE:
- wg KW samo mieszkanie ma powierzchnię 40,27 m2 (wg pomiarów 43,53),
- powierzchnia łączna wraz z piwnicą (12,34 m2) wpisaną do księgi to 52,61 m2,
- składa się z: dwóch pokoi o pow.: 14,22 m2 i 10,27 m2, kuchni z dużym oknem o pow. 10,84 m2 otwartej na przedpokój, łazienki z oknem 3,53 m2 oraz przedpokoju 4,7 m2,
- rozkład pomieszczeń widoczny na załączonym rzucie,
- położone jest na 2 piętrze, nad mieszkaniem jest strych (czysty, zadbany, idealny do suszenia prania),
- dwustronne (wschód-zachód z lekkim odchyleniem), rozkładowe
STAN MIESZKANIA:
- mieszkanie po kapitalnym remoncie (rok temu),
- wszystko jest nowe (w tym oczywiście instalacje, tynki, podłogi, itd),
- remontowane wg projektu, tak więc wszystko zostało dobrze przemyślane i rozplanowane,
- komfortowe dla pary lub singla (również dobre pod wynajem)
- całe widoczne na zdjęciach wyposażenie zostaje (w cenie mieszkania),
- kuchnia z meblami na wymiar i dużą szafą gospodarczą, ponadto wyposażona w zmywarkę, płytę indukcyjną, piekarnik, okap i lodówkę z zamrażalnikiem
OPŁATY MIESIĘCZNE:
- czynsz przy 2 osobach 375 zł plus fundusz remontowy 105 zł,
- dodatkowo tylko prąd, średni miesięczny koszt to 447 zł (wg realnego zużycia za ostatnie 13 miesięcy)
OGRZEWANIE I CIEPŁA WODA:
- nowoczesne, estetyczne i ekonomiczne grzejniki elektryczne, z funkcja zdalnego sterowania,
- jest też zamontowana klimatyzacja
INFORMACJE DODATKOWE:
- pełna własność z KW, bez obciążeń,
- duża (pow. 12,34 m2), własnościowa piwnica, jest sucha i ma okno,
- wokół budynku jest dużo ogólnodostępnych miejsc parkingowych,
- mieszkanie w pełni wyposażone,
- szybki termin wydania
- możliwość prezentacji w dogodnym terminie, klucze w biurze,
Zapraszam do kontaktu i umówienia spotkania.
----
Pośrednik Teresa Drozd-Beżaniszwili,
biuro DROZD Nieruchomości,
poniedziałek-piątek 9.00-19.00
Pośrednik od 2007 roku, nr lic. 14831. Korzystając z wiedzy i doświadczenia, pomogę Państwu w zakupie oraz sprzedaży nieruchomości, tak aby cały proces był spokojny i bezpieczny.
Oferta na stronie to tylko część mieszkań, jakie mogę zaoferować.
Zapraszam do kontaktu.
/Przykładamy dużą wagę do tego, aby możliwie najdokładniej i rzetelnie przedstawić Państwu informacje o nieruchomości, jednak zamieszczone przez nas oferty nie stanowią oferty w rozumieniu Kodeksu Cywilnego./
Oferta na wyłączność.
LOKALIZACJA:
- Wrocław-Fabryczna, osiedle Pilczyce, ul. Szklarska,
- boczna, cicha i spokojna ulica,
- wokół budynku jest dużo ogólnodostępnych miejsc parkingowych!,
- blisko jest przystanek komunikacji miejskiej (tramwaje i autobusy), szybki dojazd tramwajem do centrum,
- w pobliżu bardzo dobrze rozwinięta infrastruktura, liczne sklepy, punkty usługowe, szkoły i rekreacja,
BUDYNEK:
- budynek 2 piętrowy z cegły, lata 30ste,
- w bardzo dobrym stanie, zadbany, z odnowioną i docieplona elewacją,
- klatka czysta, zadbana,
- suche piwnice,
- większość mieszkań własnościowych
MIESZKANIE:
- wg KW samo mieszkanie ma powierzchnię 40,27 m2 (wg pomiarów 43,53),
- powierzchnia łączna wraz z piwnicą (12,34 m2) wpisaną do księgi to 52,61 m2,
- składa się z: dwóch pokoi o pow.: 14,22 m2 i 10,27 m2, kuchni z dużym oknem o pow. 10,84 m2 otwartej na przedpokój, łazienki z oknem 3,53 m2 oraz przedpokoju 4,7 m2,
- rozkład pomieszczeń widoczny na załączonym rzucie,
- położone jest na 2 piętrze, nad mieszkaniem jest strych (czysty, zadbany, idealny do suszenia prania),
- dwustronne (wschód-zachód z lekkim odchyleniem), rozkładowe
STAN MIESZKANIA:
- mieszkanie po kapitalnym remoncie (rok temu),
- wszystko jest nowe (w tym oczywiście instalacje, tynki, podłogi, itd),
- remontowane wg projektu, tak więc wszystko zostało dobrze przemyślane i rozplanowane,
- komfortowe dla pary lub singla (również dobre pod wynajem)
- całe widoczne na zdjęciach wyposażenie zostaje (w cenie mieszkania),
- kuchnia z meblami na wymiar i dużą szafą gospodarczą, ponadto wyposażona w zmywarkę, płytę indukcyjną, piekarnik, okap i lodówkę z zamrażalnikiem
OPŁATY MIESIĘCZNE:
- czynsz przy 2 osobach 375 zł plus fundusz remontowy 105 zł,
- dodatkowo tylko prąd, średni miesięczny koszt to 447 zł (wg realnego zużycia za ostatnie 13 miesięcy)
OGRZEWANIE I CIEPŁA WODA:
- nowoczesne, estetyczne i ekonomiczne grzejniki elektryczne, z funkcja zdalnego sterowania,
- jest też zamontowana klimatyzacja
INFORMACJE DODATKOWE:
- pełna własność z KW, bez obciążeń,
- duża (pow. 12,34 m2), własnościowa piwnica, jest sucha i ma okno,
- wokół budynku jest dużo ogólnodostępnych miejsc parkingowych,
- mieszkanie w pełni wyposażone,
- szybki termin wydania
- możliwość prezentacji w dogodnym terminie, klucze w biurze,
Zapraszam do kontaktu i umówienia spotkania.
----
Pośrednik Teresa Drozd-Beżaniszwili,
biuro DROZD Nieruchomości,
poniedziałek-piątek 9.00-19.00
Pośrednik od 2007 roku, nr lic. 14831. Korzystając z wiedzy i doświadczenia, pomogę Państwu w zakupie oraz sprzedaży nieruchomości, tak aby cały proces był spokojny i bezpieczny.
Oferta na stronie to tylko część mieszkań, jakie mogę zaoferować.
Zapraszam do kontaktu.
/Przykładamy dużą wagę do tego, aby możliwie najdokładniej i rzetelnie przedstawić Państwu informacje o nieruchomości, jednak zamieszczone przez nas oferty nie stanowią oferty w rozumieniu Kodeksu Cywilnego./
Wrocław, Pilczyce, Szklarska
Formularz Kontaktowy
Napisz lub zadzwoń zgłoś zamówienie